2-127-ЭУ №1085

Цена строительства от 9 505 000 ₽* * Стоимость не является окончательной
Заявка на консультацию
  • Общая площадь 130 м2
  • Материал стен Газобетон/пеноблок
  • Количество этажей 2
  • Подвал Нет
  • Мансарда без мансарды
  • Гараж Нет
  • Терраса Нет
  • Проживание Круглогодичное
  • Количество комнат 4
  • Количество спален 3
  • Количество санузлов 2
  • Вид проекта дом
  • Застройщик Стройся 54
  • Отделка фасада Лицевой кирпич
  • Крыша Вальмовая
  • Можно купить домокомплект Нет
  • Модульный тип строения Нет
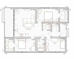
Планировки
Описание проекта

Стоимость:

Тёплый контур 9 505 000 р.

Базовая комплектация 10 580 000 р.

Проект двухэтажного жилого дома с эркером общей площадью 130 квадратных метров — эклектика классической элегантности и современных строительных материалов.

Вход в дом оформлен особенно торжественно и приглашает вас и ваших гостей переступить порог уютного жилища.

Главной особенностью данного проекта является гостиная с эркером площадью 26 кв.м., которая станет центральным местом для семейных вечеров или приема гостей. Любой хозяйке придется по душе большая и просторная кухня 18 кв. м., а если она ещё и совмещена со столовой, то процесс приготовления пищи превращается в настоящее удовольствие, поскольку имеется возможность разместить любую технику и поставить большой обеденный стол.

На второй этаж можно подняться по роскошной деревянной лестнице, где разместились две спальни каждая площадью 18кв.м. и дополнительная гостевая спальня или кабинет площадью 10 кв.м., а также полноценный санузел для максимального комфорта.

Планировка дома разработана таким образом, чтобы максимально использовать каждый квадратный метр жилого пространства, предлагая увеличенную площадь для жизни и отдыха.

Вас может заинтересовать
Вас может заинтересовать

Выбор местоположения

Задать вопрос / написать нам

E-mail: domgis@mail.ru

Мы свяжемся с Вами в течение дня.

Тех. поддержка
Предмет обращения:
Тукущая страница

Мы свяжемся с Вами в течение дня.

Уведомление
Предмет обращения:
Тукущая страница
Обратный звонок
Обратный звонок
Выберите ваш город
Пожаловаться

Объявление опубликовано.
Изменения сохранены

Период публикации - бессрочный, при условии подтверждения актуальности каждые 50 дней. Уведомления будут отправляться на Вашу электронную почту.

Выберите причину снятия с публикации

Снятые с публикации объявления не участвуют в поиске и недоступны для подробного просмотра.

Для повторной публикации нажмите «Вернуть в публикацию»