Рига 63 №533

Цена строительства от 4 050 000 ₽* * Стоимость не является окончательной
Заявка на консультацию
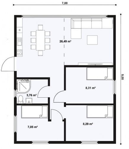
  • Общая площадь 63 м2
  • Длина 9 м
  • Ширина 7 м
  • Материал стен Каркасно-панельные
  • Количество этажей 1
  • Подвал Нет
  • Мансарда без мансарды
  • Гараж Нет
  • Терраса Нет
  • Проживание Круглогодичное
  • Количество комнат 4
  • Количество спален 3
  • Количество санузлов 1
  • Вид проекта дом
  • Застройщик Сибирский Дом
  • Архитектурный стиль Классический
  • Отделка фасада Обшивка деревом
  • Крыша Двускатная
  • Можно купить домокомплект Нет
  • Модульный тип строения Нет
Планировки
Описание проекта

Технология строительства

СИП панели

Тепловой контур - 4 050 000 р

С коммуникациями - 4 895 000 р

С внешней отделкой - 5 675 000 р

С внутренней отделкой - По запросу

Каркасный дом

С внешней отделкой - 5 399 000 р

С внутренней отделкой - По запросу

Газобетон

Тепловой контур - 5 265 000 р

С коммуникациями - 6 110 000 р

С внешней отделкой - 6 890 000 р

С внутренней отделкой - По запросу

Кирпич

Тепловой контур - 5 467 000 р

С коммуникациями - 6 312 000 р

С внешней отделкой - 7 092 000 р

С внутренней отделкой - По запросу

Вас может заинтересовать
Вас может заинтересовать

Выбор местоположения

Задать вопрос / написать нам

E-mail: domgis@mail.ru

Мы свяжемся с Вами в течение дня.

Тех. поддержка
Предмет обращения:
Тукущая страница

Мы свяжемся с Вами в течение дня.

Уведомление
Предмет обращения:
Тукущая страница
Обратный звонок
Обратный звонок
Выберите ваш город
Пожаловаться

Объявление опубликовано.
Изменения сохранены

Период публикации - бессрочный, при условии подтверждения актуальности каждые 50 дней. Уведомления будут отправляться на Вашу электронную почту.

Выберите причину снятия с публикации

Снятые с публикации объявления не участвуют в поиске и недоступны для подробного просмотра.

Для повторной публикации нажмите «Вернуть в публикацию»