Проект 7 №826

Цена строительства от 7 700 000 ₽* * Стоимость не является окончательной
Заявка на консультацию
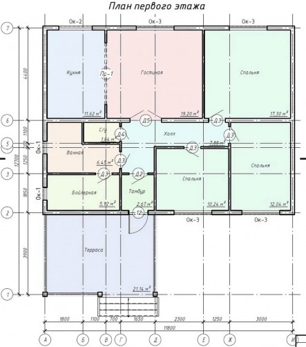
  • Общая площадь 116 м2
  • Длина 11.8 м
  • Ширина 12.7 м
  • Материал стен Профилированный брус
  • Количество этажей 1
  • Подвал Нет
  • Мансарда без мансарды
  • Гараж Нет
  • Терраса Да
  • Проживание Круглогодичное
  • Количество комнат 4
  • Количество спален 3
  • Количество санузлов 2
  • Вид проекта дом
  • Застройщик ДомоСтрой
  • Архитектурный стиль Классический
  • Отделка фасада Обшивка деревом
  • Крыша Вальмовая
  • Можно купить домокомплект Нет
  • Модульный тип строения Нет
Планировки
Описание проекта
  • Толщина наружных стен 190 мм
  • Тип фундамента Ленточный
  • Материал перекрытий Деревянные
  • Материал кровли Металлические рулонные или листовые материалы
  • Материал внутренних перегородок Деревянные
  • Толщина внутренних перегородок 90 мм
Вас может заинтересовать
Вас может заинтересовать

Выбор местоположения

Задать вопрос / написать нам

E-mail: domgis@mail.ru

Мы свяжемся с Вами в течение дня.

Тех. поддержка
Предмет обращения:
Тукущая страница

Мы свяжемся с Вами в течение дня.

Уведомление
Предмет обращения:
Тукущая страница
Обратный звонок
Обратный звонок
Выберите ваш город
Пожаловаться

Объявление опубликовано.
Изменения сохранены

Период публикации - бессрочный, при условии подтверждения актуальности каждые 50 дней. Уведомления будут отправляться на Вашу электронную почту.

Выберите причину снятия с публикации

Снятые с публикации объявления не участвуют в поиске и недоступны для подробного просмотра.

Для повторной публикации нажмите «Вернуть в публикацию»