ДМ-102 №435

Цена строительства от 1 990 000 ₽* * Стоимость не является окончательной
Заявка на консультацию
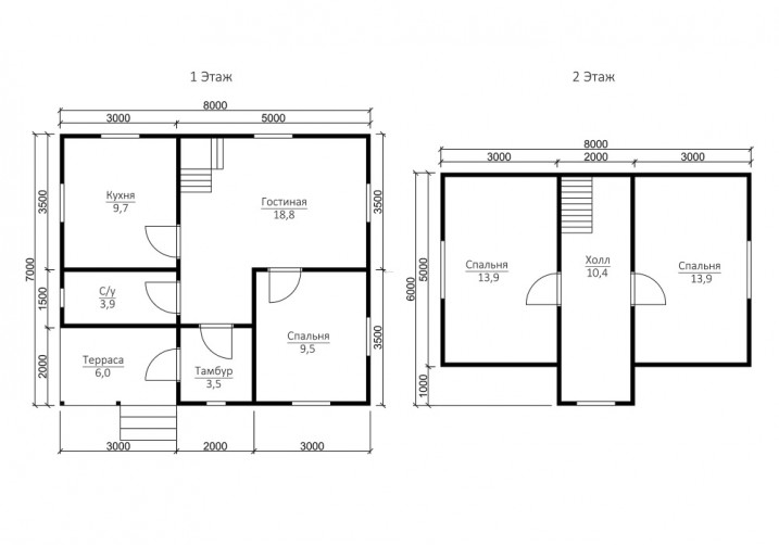
  • Общая площадь 56 м2
  • Длина 8 м
  • Ширина 7 м
  • Материал стен Профилированный брус
  • Количество этажей 1
  • Подвал Нет
  • Мансарда Имеется
  • Гараж Нет
  • Терраса Нет
  • Проживание Круглогодичное
  • Количество комнат 4
  • Количество спален 3
  • Количество санузлов 1
  • Вид проекта дом
  • Застройщик МАЛОЭТАЖНЫЕ ДОМА
  • Архитектурный стиль Классический
  • Крыша Двускатная
  • Можно купить домокомплект Да
  • Модульный тип строения Нет
Планировки
Описание проекта

Проф.брус 100х150 мм

Цена, сруб 1070 000 руб

Цена, под ключ 1990 000 руб

Проф.брус 150х150 мм

Цена, сруб 1235 000 руб

Цена, под ключ 2170 000 руб

Проф.брус 200х150 мм

Цена, сруб 1390 000 руб

Цена, под ключ 2390 000 руб

Проект полутораэтажного дома из бруса с мансардой в компании малоэтажные дома, общая площадь которого составляет 98 кв.м., – это эксплуатационный надежный проект дома из бруса, функциональность и изысканный дизайн.

Проект дома из бруса 102 отличается удобной экспликацией помещений: удобная кухня, просторная светлая гостиная и комфортная спальня. Во всех жилых комнатах домов из бруса проектом предусмотрены зимние двойные окна и деревянные двери. На входе в дом стоит надежная металлическая дверь.

Законченный вид дому из бруса придает мансардная, надежно защищающая строение от снега и непогоды.

Экологическая чистота деревянного дома из бруса пиломатериала и свойство натурального дерева «дышать» - преимущества, обусловившие популярность домов из бруса. Двойные оконные рамы домов из бруса, монолитная структура бруса и дополнительный слой теплоизоляции сберегают тепло и формируют комфортные условия для круглогодичного проживания в городе Новосибирск.

Вас может заинтересовать
Вас может заинтересовать

Выбор местоположения

Задать вопрос / написать нам

E-mail: domgis@mail.ru

Мы свяжемся с Вами в течение дня.

Тех. поддержка
Предмет обращения:
Тукущая страница

Мы свяжемся с Вами в течение дня.

Уведомление
Предмет обращения:
Тукущая страница
Обратный звонок
Обратный звонок
Выберите ваш город
Пожаловаться

Объявление опубликовано.
Изменения сохранены

Период публикации - бессрочный, при условии подтверждения актуальности каждые 50 дней. Уведомления будут отправляться на Вашу электронную почту.

Выберите причину снятия с публикации

Снятые с публикации объявления не участвуют в поиске и недоступны для подробного просмотра.

Для повторной публикации нажмите «Вернуть в публикацию»